Raumkonzept
Hinweis: Sie gelangen zu den Texten durch Klicken auf die Bereichsüberschrift.
Ausgangslage
Die Institution KunstKlangKirche ist ein Ort der Forschung, ein Ort des Experimentierens hinsichtlich neuer Formen der christlichen Gottesdienstgestaltung sowie ein Ausbildungszentrum für Orgelmusik und Orgelbau.
Der Ort dient sowohl der Ausbildung als auch der Durchführung von Gottesdiensten, Konzerten und Performances. Neben Orgel- und Chormusik stehen auch andere Kunstformen wie beispielsweise Tanz im Fokus des Interesses.
Aufgrund der entfernten Lage der Kirche soll auch ein gewisses gastronomisches Angebot ins Konzept einfliessen.
Die geplanten Veränderungen
Ziel der Renovation der Kirche zu einer attraktiven KunstKlangKirche ist:
- Erreichen grösserer Flexibilität in der Nutzung (Bestuhlung)
- Verbessern der Raumwirkung durch Aufhellen und Variabilität der Beleuchtung (Stimmung) durch ein entsprechendes Lichtkonzept
- Errichten von Orgelpodesten entlang den Wänden des Ovals zur Stellung der Instrumente
- Nutzbarmachung der Empore für diverse Anlässe
- Anpassung der über 70-jährigen Infrastruktur an heutige Bedürfnisse (Toiletten, Behindertenzugänglichkeit)
- Behinderten- und Materialtransporte in der Vertikalen ermöglichen
- Einbezug der vorhandenen Orgel
- Beibehaltung oder gar Verbesserung der guten Raumakustik für Musikwiedergabe
Etappierung
Als Berater haben wir Ernst Rüegg, Architekt, Krähbühlstrasse 126, Zürich, beigezogen. Er verfügt über eine umfassende Erfahrung im Umgang mit Kirchen und denkmalgeschützten Objekten (www.rueegg-architekten.ch).
Das Umbauprojekt sieht geschickte Etappierungsmöglichkeiten vor. Alle erforderlichen Arbeiten im Kirchensaal und auf der Empore sind der Etappe I zugeordnet, so dass die Bauarbeiten weiterer Etappen auf den mit Orgeln bestückten Raum keinen Einfluss haben.
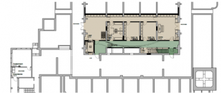
Etappe I
Kirchensaal
- Bänke werden alle entfernt; neue Bestuhlung
- Boden: Neubelag (Holz oder Steinplatten, evtl. direkt auf alten Boden)
- Die Heizungsverteilung kann belassen werden, jedoch sind eine neue Bodenheizung und neue Heizkörper unter den neuen seitlichen Podesten erforderlich.
- Die Podeste dienen der Aufstellung der Orgeln. Die Stufen können mit Stühlen oder mit Sitzkissen bestückt werden.
- Ein ausgeklügeltes Beleuchtungskonzept gibt dem Raum – zusammen mit dem neuen Boden – eine neue (auch flexible) Atmosphäre.
- Ein Lift ermöglicht eleganten Abtransport nicht gebrauchter Stühle und Kleininstrumente in das Untergeschoss oder auf die Empore, dient aber auch als (Behinderten-)Lift als Zugang zur Empore oder (später) zum Untergeschoss.
- Die Befahrbarkeit des Raumes für Instrumente (Flügel) und Technik ist gewährleistet.
- Das Altarbild wird einsehbar belassen.
- Die Akustik darf unter dem Umbau nicht leiden.
Empore
- Die Empore wird mehr oder weniger belassen. Infolge des Lifts und aus Brandschutzgründen sind jedoch zwei neue Treppen erforderlich.
Untergeschoss
- Eine neue Treppe führt in das Untergeschoss, in welchem neben vier Künstlergarderoben auch ein Lager- und ein Archivraum (evtl. auch mit Übe-Orgel) gebaut werden.
- Diensträume wie bisher.
- Die Kirchenbänke sollen vorerst im Keller der Kirche gelagert werden.
Wirtschaftsraum im Nebengebäude
- Wird belassen wie er ist. Geeignet für Unterricht, Sitzungen und zum Üben.
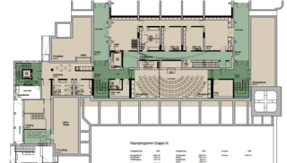
Etappe II
Foyer
- Neue Treppe ins Untergeschoss
- Die bisherigen Nasszellen werden zu einem Office umgearbeitet, welches fortan als Drehscheibe für die gastronomische Versorgung dient.
Untergeschoss
- Übungsraum mit ca. 100 Stühlen und Platz für eine Übungsorgel
- Neue Toiletten
- Weitere Nebenräume
- Anpassung der Haustechnik
Etappe III
Untergeschoss
- Einbau einer kleinen Produktionsküche mit Warenlift ins Office
- Direktanbindung Wirtschaftsraum im Nebengebäude durch wettersicheren, unterirdischen Zugang mit Lift
- Zweiter Übungsraum und zusätzlicher Nebenraum
In weiteren Phasen können zusätzliche Räume im Untergeschoss der Kirche nutzbar gemacht werden.
Die Baukosten belaufen sich gemäss Grobkostenschätzung des Architekten auf rund CHF 4'000'000.
Aufgrund der Etappierungsmöglichkeiten kann das Vorhaben flexibel gehandhabt und den finanziellen Möglichkeiten angepasst werden.